| Theban tomb TT15 | |
|---|---|
| Burial site of Tetiky | |
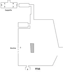
![]() Floor plan of TT15 | |
| Location | Dra' Abu el-Naga', Theban Necropolis |
| Excavated by | Howard Carter (1908) |
The Theban Tomb TT15 is located in Dra' Abu el-Naga', part of the Theban Necropolis, on the west bank of the Nile, opposite to Luxor. It is the burial place of the ancient Egyptian Tetiky,[1] who was Mayor of Thebes, during the reign of Ahmose I, during the early Eighteenth Dynasty.[2]
Tetiky was the son of Rahotep Overseer of the harem of the Lake and Sensonb. Tetiky's wife is named Senbi.[3]
Chapel and tomb

| Tetiky in hieroglyphs | ||||||
|---|---|---|---|---|---|---|
| Era: New Kingdom (1550–1069 BC) | ||||||
The chapel and tomb were excavated in the spring of 1908 by a team led by Howard Carter, excavating on behalf of his sponsor, Lord Carnarvon.[4] The chapel and associated buildings are made of mud brick. The burial chambers are cut into the bedrock and are accessed by a single vertical shaft.[5]
The decoration in this tomb shows the continued development of the royal image, showing as it does the King's Wife Ahmose-Nefertari, offering to Hathor, and having a double-Uraeus for the first time, an image that later became 'standard' royal iconography. [6] The tomb has been damaged due to looting, and the Louvre have recently returned several decorated sections from the tomb.[7]
See also
References
- ↑ Baikie, James (1932). Egyptian Antiquities in the Nile Valley. Methuen.
- ↑ "Dynasty 18 tombs and tomb-chapels allotted numbers". University College London. Retrieved 2009-12-29.
- ↑ Porter and Moss, Topographical Bibliography: The Theban Necropolis, pp. 26–27
- ↑ de Garis Davies, N. (April 1925). "The Tomb of Tetaky at Thebes (No. 15)". The Journal of Egyptian Archaeology. 11 (1/2): 10–18. doi:10.2307/3854267.
- ↑ Carnarvon, George Edward Stanhope Molyneux Herbert; Carter, Howard (1912). Five years' explorations at Thebes : a record of work done 1907–1911. London: Oxford University Press. p. 12. Retrieved 12 December 2022.
- ↑ Eaton-Krauss, M. (1998). "Four Notes on the Early Eighteenth Dynasty". The Journal of Egyptian Archaeology. The Egyptian Exploration Society. 84: 205–210.
- ↑ "France's Louvre museum returns five frescoes to Egypt". BBC. 2009-12-14. Retrieved 2009-12-29.
